• ANA SAYFA
    • HAKKIMIZDA
    • TINY HOUSE
    • AHŞAP EV
    • BLOCKHAN NEDİR?
    • İLETİŞİM
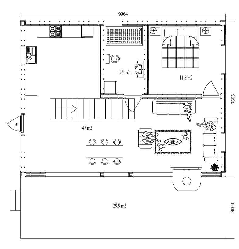
    BLOCKHAN.0.1

    Oda sayısı: 2 + 1
    Banyo sayısı: 2
    Kapalı Alan : 121,5 metrekare
    Veranda : 29,9 metrekare
    Toplam Alan : 151,4 metrekare


    BLOCKHAN.0.1
    BLOCKHAN.0.1
    BLOCKHAN.0.1
    BLOCKHAN.0.1

    AHŞAP EV

    • BLOCKHAN.0.2
    • BLOCKHAN.0.3
    • BLOCKHAN.0.4
    • BLOCKHAN.0.5
    • İki Katlı Taş Duvar ve Blockhan Ahşap Konseptimiz
    • İki Katlı Blockhan Ahşap Konseptimiz
    • Üç Katlı Taş Duvar ve Blockhan Ahşap Konseptimiz
    • Tek Katlı Blockhan Ahşap Konseptimiz
    • Şase Üzerine Blockhan Ahşap Konseptimiz
    • Bungalov Ev Konseptimiz
    • Depremzedeler için Projemiz
    BLOCKHAN AHŞAP YAPI ELEMANLARI LTD. ŞTİ.

    Bekdiğin Mah. Havza Osb. Cad. No:25/1
    Havza / SAMSUN

    BLOCKHAN AHŞAP EV
    E-Posta: [email protected]
    Telefon: +90 (542) 735 31 24

    BLOCKHAN TINY HOUSE
    E-Posta: [email protected]
    Telefon: +90 (532) 499 52 22

    Copyright © 2021 BLOCKHAN | Tüm Hakları Saklıdır.